受付時間/10:00~18:00
トップページ > 知多郡武豊町字楠4丁目 中古戸建
物件価格2,500万円
月々の支払い67,500円
※上記支払例の借入条件:金利0.95%、借入総額2,500万円、借入期間35年
月々のお支払い76,950円
ボーナス払い0円
※上記支払例の借入条件:金利0.95%、借入総額2,850万円、借入期間35年
| 所在地 | 知多郡武豊町字楠4丁目 | ||
|---|---|---|---|
| 最寄駅 | 名鉄河和線 知多武豊 | 徒歩分数 | 20分 |
| 最寄バス停 | 徒歩分数 | ||
| 小学校校区 | 衣浦小学校 | 中学校校区 | 武豊中学校 |
※学校区は住所から自動判定したものであり、保証できる情報ではございません。正確な学校区はお問い合わせ下さい。
「人型アイコン」を地図上にドラッグすることで『Google Street View』に切り替わります。
※地図上の「対象地」は「」の場所を指しています。実際の場所ではない場合がございます。詳しくはお問い合わせください。
| 価格 | 2,500万円 | 種目 | 中古一戸建住宅 |
|---|---|---|---|
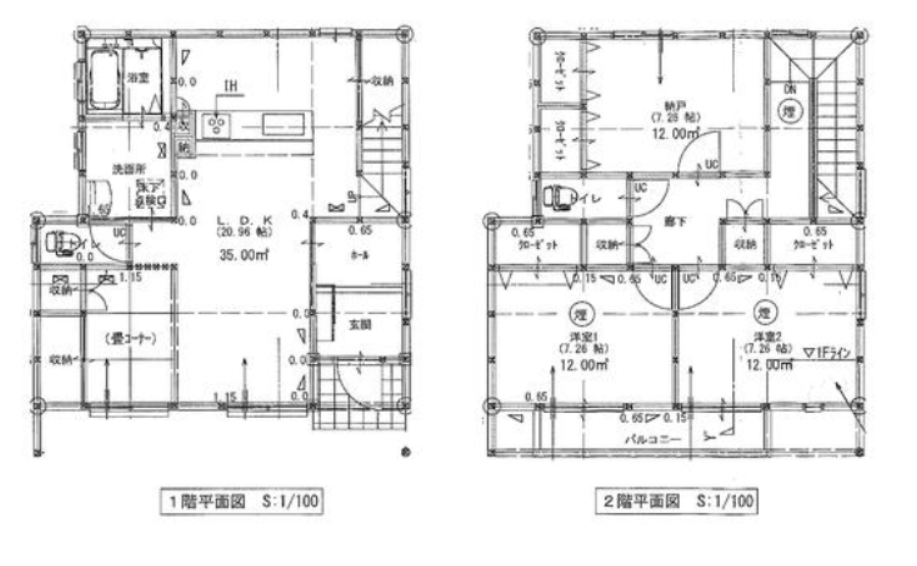
| 間取り | 3LDK | 間取り内訳 | |
| 土地面積 | 165.31㎡ | 私道面積 | |
| 建物面積 | 118㎡ | 建物構造規模 | 木造 2階建 |
| 築年月(竣工月) | 2014年01月 | 駐車場 | 有 |
| 建ぺい率/容積率 | 60%/150% | 都市計画 | 市街化区域 |
| 接道状況 | 東6m 公道 接面16m | ||
| 地目 | 宅地 | ||
| 土地権利 | 所有権 | 地勢 | |
| 用途地域 | 第一種中高層住居専用地域 | ||
| 現況 | 所有者居住中 | 取引態様 | 媒介 |
| 建築確認番号 | |||
| 引渡し | 期日指定 2026年05月中旬 |
|---|
| 設備 | 電気、上水道、下水道、トイレ2ヶ所、都市ガス | ||
|---|---|---|---|
| 特徴 | |||
| 諸条件・相談 | |||
| 情報登録日 | 2026年2月17日 | 情報更新予定日 | 2026年4月11日 |
| 物件番号 | 14269 | ||
| 備考 | ●保育園まで徒歩3分! ●コンビニまで徒歩9分! ●太陽光発電10㎞残売電約10年あり(年間約35万収入) ●オール電化 | ||
