受付時間/10:00~18:00
トップページ > 知多郡東浦町大字石浜字三本松 新築戸建 東浦町石浜三本松 6期全2区画
物件価格4,299万円
月々の支払い116,073円
※上記支払例の借入条件:金利0.95%、借入総額4,299万円、借入期間35年
太陽光と外断熱の機能美。高台の安心と利便を享受する、駐車場3台完備のこだわり邸宅で豊かな日常を。
| 所在地 | 知多郡東浦町大字石浜字三本松 | ||
|---|---|---|---|
| 最寄駅 | JR武豊線 石浜 | 徒歩分数 | 17分 |
| 最寄バス停 | 徒歩分数 | ||
| 小学校校区 | 石浜西小学校 | 中学校校区 | 東浦中学校 |
※学校区は住所から自動判定したものであり、保証できる情報ではございません。正確な学校区はお問い合わせ下さい。
「人型アイコン」を地図上にドラッグすることで『Google Street View』に切り替わります。
※地図上の「対象地」は「」の場所を指しています。実際の場所ではない場合がございます。詳しくはお問い合わせください。
| 価格 | 4,299万円 | 種目 | 新築一戸建住宅 |
|---|---|---|---|
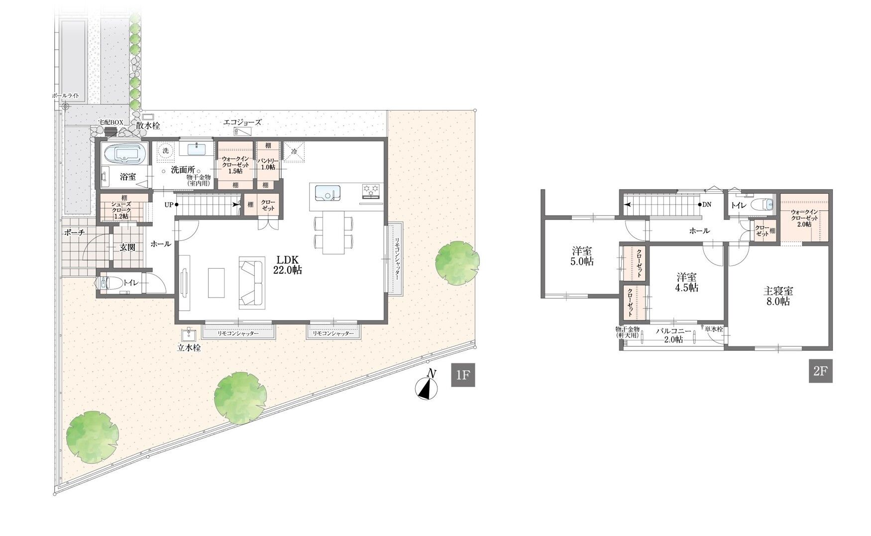
| 間取り | 3LDK | 間取り内訳 | |
| 土地面積 | 198.34㎡ | 私道面積 | |
| 建物面積 | 104.45㎡ | 建物構造規模 | 木造 2階建 |
| 築年月(竣工月) | 2026年03月 | 駐車場 | 有 |
| 建ぺい率/容積率 | 60%/200% | 都市計画 | 市街化区域 |
| 接道状況 | 北6m 公道 南15m 公道 | ||
| 地目 | 宅地 | ||
| 土地権利 | 所有権 | 地勢 | |
| 用途地域 | 第一種中高層住居専用地域 | ||
| 現況 | 未完成 | 取引態様 | 媒介 |
| 建築確認番号 | 第R07確認建築愛建住セ22139号 | ||
| 引渡し |
|---|
| 設備 | 電気、上水道、下水道、温水洗浄便座、トイレ2ヶ所、システムキッチン、カウンターキッチン、食器洗浄乾燥機、ウォークインクローゼット、床下収納、室内洗濯機置場、都市ガス、宅配BOX、複層ガラス、モニタ付インターホン | ||
|---|---|---|---|
| 特徴 | 日当り良好、24時間換気システム | ||
| 諸条件・相談 | |||
| 情報登録日 | 2025年12月9日 | 情報更新予定日 | 2026年4月19日 |
| 物件番号 | 13249 | ||
| 備考 | ●太陽光パネル、電動シャッター、全窓網戸標準、LED照明付き、駐車場3台(車種による)などこだわりが詰まったサーラの壁外断熱分譲! ●スーパー、ドラッグストア、保育園、小学校が徒歩15分以内にそろっています! ●標高12~17mに位置し、水害・水災などのハザードマップも安心な好立地! | ||
