受付時間/10:00~18:00
トップページ > 刈谷市今川町山脇 新築戸建 コミュニティタウン刈谷市今川町2
物件価格4,790万円
月々の支払い132,970円
※上記支払例の借入条件:金利0.90%、借入総額4,790万円、借入期間35年
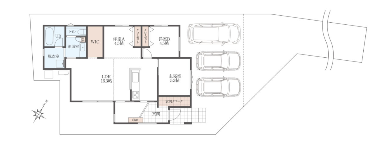
●太陽光発電システム●間仕切り可能な最大20.8帖のLDK+庭との一体感●最大駐車並列で3台可能
| 所在地 | 刈谷市今川町山脇 | ||
|---|---|---|---|
| 最寄駅 | 名鉄名古屋本線 富士松 | 徒歩分数 | 7分 |
| 最寄バス停 | 徒歩分数 | ||
| 小学校校区 | 富士松南小学校 | 中学校校区 | 富士松中学校 |
※学校区は住所から自動判定したものであり、保証できる情報ではございません。正確な学校区はお問い合わせ下さい。
「人型アイコン」を地図上にドラッグすることで『Google Street View』に切り替わります。
※地図上の「対象地」は「」の場所を指しています。実際の場所ではない場合がございます。詳しくはお問い合わせください。
| 価格 | 4,790万円 | 種目 | 新築一戸建住宅 |
|---|---|---|---|
| 間取り | 間取り内訳 | ||
| 土地面積 | 268.06㎡ | 私道面積 | |
| 建物面積 | 78.66㎡ | 建物構造規模 | 木造 1階建 |
| 築年月(竣工月) | 2026年03月 | 駐車場 | 有 |
| 建ぺい率/容積率 | 60%/100% | 都市計画 | 市街化区域 |
| 接道状況 | 北東4.8m 公道 | ||
| 地目 | 宅地 | ||
| 土地権利 | 所有権 | 地勢 | |
| 用途地域 | 第一種住居地域 | ||
| 現況 | 未完成 | 取引態様 | 媒介 |
| 建築確認番号 | 第愛建2025建築確認02141号 | ||
| 引渡し |
|---|
| 設備 | 電気、上水道、下水道、温水洗浄便座、追焚機能、浴室乾燥機、システムキッチン、IHクッキングヒーター、浄水器、食器洗浄乾燥機、ウォークインクローゼット、床下収納、室内洗濯機置場、複層ガラス、エアコン、モニタ付インターホン | ||
|---|---|---|---|
| 特徴 | オール電化 | ||
| 諸条件・相談 | |||
| 情報登録日 | 2025年11月17日 | 情報更新予定日 | 2026年2月27日 |
| 物件番号 | 12959 | ||
| 備考 | ●太陽光発電システム ●Kダンパー標準搭載! ●間仕切り可能な最大20.8帖のLDK+庭との一体感 ●たっぷり収納のシューズBOX+1.5帖の玄関クローク ●洗濯動線が嬉しい◎ ●洗面脱衣に近いWIC ●最大駐車並列で3台可能 ●洗面脱衣別でプライバシーも◎ ●使いやすいおしゃれな造作洗面台 ●開放感のあるLDKのワイドサッシ | ||
